Artikelnummer: 2038

Wasserpumpe

Spielwerte

3.813,00 

zzgl. MwSt. und Versand

Die Fotos dienen nur konzeptionellen Zwecken. Sie bilden nicht immer das gewählte Gerät ab und Abweichungen sind möglich.

Gut zu wissen

Detailinformationen zum Produkt

Beschreibung

Abwechslungsreiche Nutzung fördert Motorik, Mut und Fantasie. Die Ausführung aus Edelstahl bietet höchste Widerstandsfähigkeit, Korrosionsschutz und eine moderne, wertige Anmutung. Durchdachte Spielwege fördern Motorik, Koordination und Körpergefühl. Geeignet für den angegebenen Altersbereich nan. Perfekt für Stadtparks, Schulhöfe und kommunale Spielplätze.

Artikelnummer: 2038

  • Material: Edelstahl, HDPE
  • max. freie Fallhöhe: 0,15 m
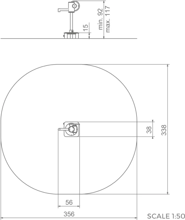
  • min. Fallraum: 11,00 m²
  • Abmessungen des Gerätes L x H x B: 0,38 x 1,03 x 0,56 m
  • empf. Fallschutz: kein Fallschutz notwendig
  • empf. Altersgruppe: 1 - 8 Jahre
  • min. Sicherheitsbereich: 3,38 x 3,56 m
  • Zahl der Nutzer: 2

Montageinformationen:

  • Verankerungsoptionen: N*
  • Nötige Menge Beton (C20/25): 0,2 m³
  • Zahl der Fundamente: 1
  • Empfohlenes Montagepersonal: 2
 

*N - Das Gerät wird mit Pfosten zum Einbetonieren geliefert. (Fundamente sind nicht Bestandteil der Lieferung.)

Materialien unserer Geräte:

Standpfosten

Stahl

  • Pfostenstärke Ø 88,9 mm
  • Wandstärke 2 mm
  • sandbestrahlt
  • Eisenphosphat
  • verzinkt
  • QUALICOATE pulverbeschichteter Stahl – verschiedene RAL Farben erhältlich (siehe aktuelle Farbtabelle)

Edelstahl

  • Pfostenstärke Ø 76,0 mm
  • Edelstahl AISI 304

KDI-Holz

  • kernlosen PU-Verleimten Nadelschichtholz (Kiefer)

Robinienholz

  • FSC – Zertifiziert
  • entsplintet
  • geschält

Seitenwände und Dächer

  • HDPE (High-Density Polyethylen) – 15mm
  • HPL (High Pressure Laminat) – 15 mm (schwarze Platten 8mm)

Podestböden

  • rutschhemmendes HPL (High Pressure Laminat) – 10 mm

Seile

  • Ø 16mm Herkulestau mit Stahlkern in verschiedenen Farben (Siehe Farbtabelle)

Verbindungsmaterialien

  • Edelstahl

Weitere Materialien im Downloadbereich.

Garantien und Gewährleistung

  • Gewährleistungsansprüche nach gesetzlichen Vorgaben durch BGB und VOB bis zu 5 Jahre. (Siehe AGB)
  • 15 Jahre Garantie – strukturelle Festigkeit von Stahl und Edelstahl und Stahlbauteile
  • 10 Jahre Garantie – strukturelles Versagen von Stahl und Edelstahl, Stahl für dynamische Geräte
  • 5 Jahre Garantie – strukturelles Versagen von Polyethylen-Bauteilen und hochdrucklaminierter Komponenten
  • 5 Jahre Garantie – bei Korrosion von Edelstahl und heiß tauchverzinkt und pulverbeschichtete Komponenten; gegen Borkenkäfer und Fäulnis bei Holzbauteilen

Zertifikate

  • EN1176 Spielplatzgeräte und Freizeitanlagen – alle unsere Geräte sind für den öffentlichen Raum zertifiziert
  • EN16630 Standortgebundene Fitness- und Sportgeräte im Außenbereich
  • EN1177 Stoßdämpfende Spielplatzböden – alle unsere Fallschutzmaterialien sind nach EN1176 und 1177 zertifiziert

Downloads & Links

Für Architekten:


Ausschreibungstext anfordern

Benötigen Sie Unterlagen für Ihre Ausschreibung?

Mehr entdecken

Ähnliche Spielplatzgeräte

Artikelnummer: 2903

4.961,00 

Artikelnummer: 2027

2.882,00 

Artikelnummer: 2001

1.786,00 

Sie haben Fragen?

Kontaktieren Sie uns

Haben Sie Fragen oder Anliegen? Schreiben Sie uns oder rufen Sie uns an. Auch im Live Chat sind wir gern für Sie da.

Ein hölzernes Spielplatzgebäude in Form eines Schiffes mit einem hohen Mast, Rutschen und Sand darunter. Im Hintergrund sind Bäume und ein klarer blauer Himmel zu sehen.
Ein junges Mädchen klettert lächelnd auf einen runden Spielplatz aus Metall und Seilen, während im Hintergrund Bäume und Grünflächen zu sehen sind.